Fritidshus - SOLGT

Velindrettet og helårsanvendelig fritidsbolig

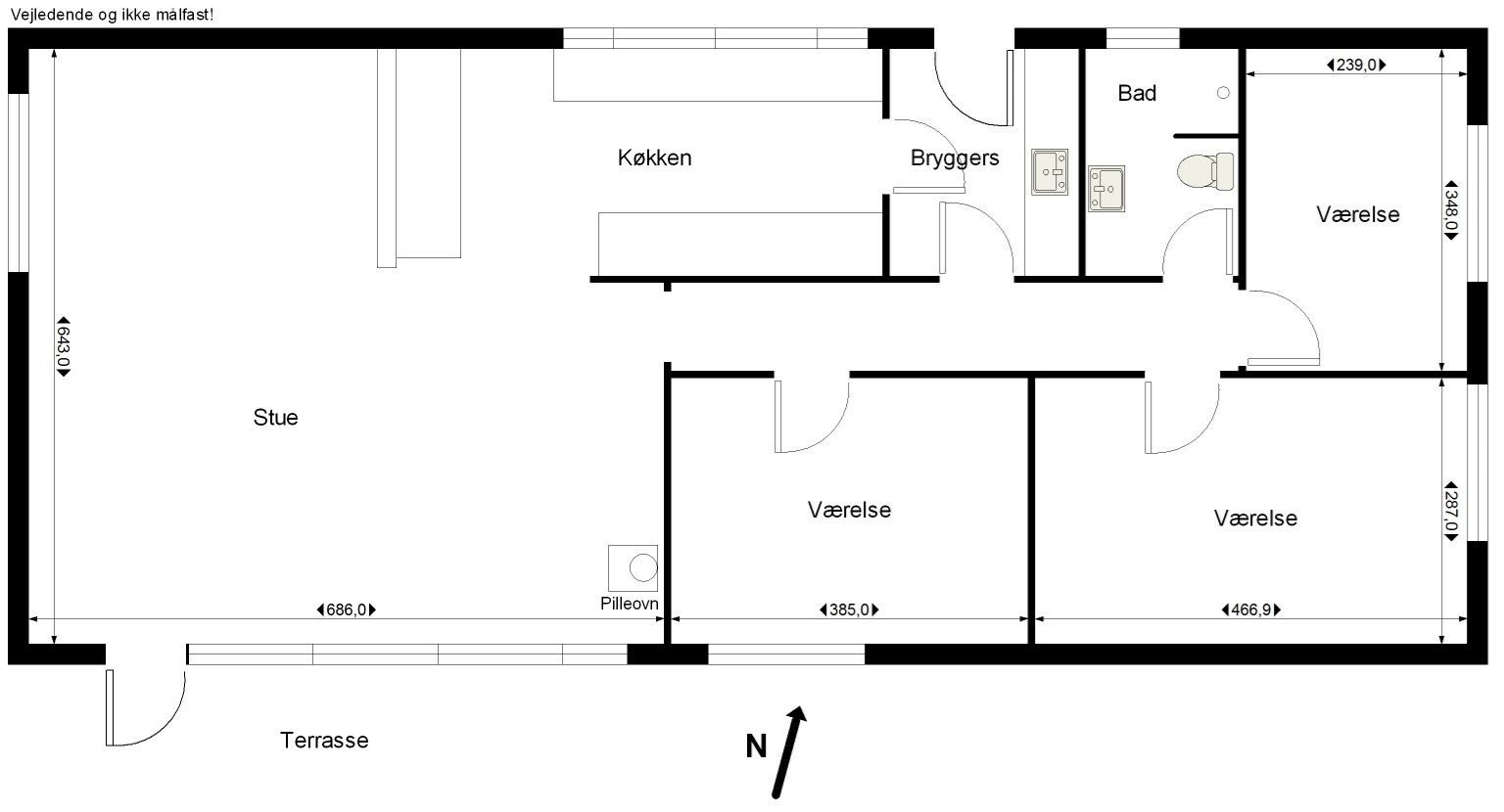
I fredelige omgivelser ikke langt fra Gilleleje ligger denne helårsanvendelige fritidsbolig. Huset har en god planløsning og et indbydende interiør med hvidmalede vægge og lofter samt lyse gulve. Stor, lys stue med flot, åbent køkken suppleres af tre rummelige soveværelser, flot badeværelse og entre/bryggers.

Haven henligger som solrig græsplæne med spredte beplantninger. Mod vest er der tættere beplantning, hvilket skaber flere hyggelige lækroge. Haven kan nydes fra stor sydvestvendt fliseterrasse med vildmarksbad. Ud mod den lille vej er der parkeringsareal og adgang til carport med indbygget udhus.

Ejendommen er beliggende i fredeligt, lukket vejområde i cykelafstand fra Gilleleje centrum. Områdets små, stille sommerhusveje leder de godt 1.400 m til stranden og til dagligvareindkøb i Smidstrup er der samme korte afstand.

Ejendommen indeholder:
Stor, lys opholdsstue med pilleovn, varmepumpe samt udgang til den sydvendte terrasse. Flot, åbent køkken med flisegulv, spotlys, hvide elementer og træbordplader samt god skabsplads. Stort, lyst forældresoveværelse. To gode børne-/gæsteværelser. Flot badeværelse med flisegulv, spotlys samt afskærmet og flisebeklædt bruseniche. Fin entre/bryggers med flisegulv og vaskesøjle.

Ikke til salg
Boligareal
110 m2
Værelser
4
Byggeår
1971
Ejerudgift pr. md.
2.566
Grundareal
1.200 m2
Udhus
7 m2
Garage
-
Carport
13 m2
Afstand til strand
ca. 1.400 m
Boliglån
vores

Lignende ejendomme