Fritidshus - SOLGT

Stråtækt charme på smukt beplantet grund

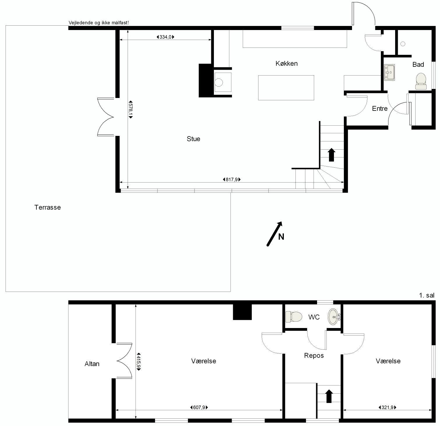
Skøn, stråtækt fritidsbolig hvor charme og stemning går op i en højere enhed. Huset har overalt et lyst og venligt interiør med hvidmalede lofter og vægge samt fortrinsvis hvidmalede trægulve. Huset er oprindeligt fra 1966 men opgraderet/renoveret i midten af 2010'erne, hvor stråtaget også er fra. Husets store, lyse opholdsstue er det naturlige samlingspunkt for familien og suppleres af flot, åbent køkken, flisebadeværelse, entre samt to soveværelser, toilet og repos på 1. salen.

Ejendommen er højtliggende på en smukt beplantet og let vestskrånende grund. Her skaber mange beplantninger skønne lækroge og skyggefulde pletter. Haven kan nydes i fulde drag fra stort, delvist overdækket træterrasseanlæg orienteret mod syd og vest. Ud mod den lille vej er der flisebelagt parkeringsareal ledende til stor, dobbelt carport med ladestander til el-bil. I forbindelse med carporten er der udhus og hyggeligt anneksværelse, med ekstra sovepladser, hvorfra bred, flisebelagt sti leder til hus og terrasse.

Huset har en meget fredelig beliggenhed i roligt, lukket vejområde kun ca. 700 m fra stranden, hvortil der er adgang via små sommerhusveje og stier. I nærområdet er der også de to store fredede naturområder A.P. Møller Grunden og Rågegården, der kan nydes på alle tider af året.

Ejendommen indeholder:
Stueplan: Stor, lys vinkelstue med spiseplads, varmepumpe, mange sydvendte vinduespartier samt fløjdøre til det store terrasseanlæg. Flot, åbent køkken med hvide elementer, alt i hvidevarer, bl.a. cooker, god skabsplads samt udgang til haven mod nord. Pænt flisebadeværelse med bruseniche. Entre med garderobeplads.
1. sal: Stort soveværelse med udgang til vestvendt altan. Endnu et rummeligt soveværelse. Toilet. Repos.

Ejendommen udlejes via Sol og Strand og kan derfor kun besigtiges efter nærmere aftale.

Ikke til salg
Boligareal
103 m2
Værelser
3
Byggeår
1966
Ejerudgift pr. md.
2.876
Grundareal
1.201 m2
Udhus
-
Garage
-
Carport
49 m2
Afstand til strand
ca. 700 m
Boliglån